Garage automobile et réparation A-DR PASSION à Balbigny près de l'autoroute A89 entre Lyon et Clermont-Ferrand.

agrandissement garage 06

Prochainement la création d'une station de lavage Total Wash pour les voitures et utilitaires.

Station de lavage Total Wash
Façades Ouest/Est Total Wash
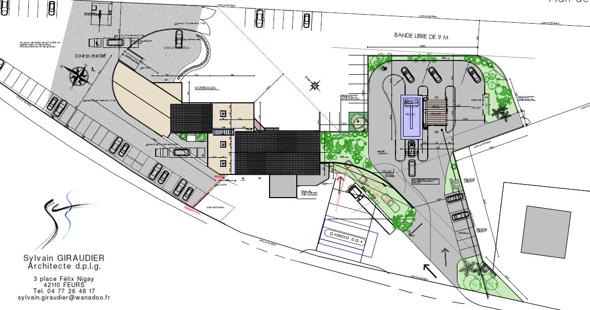
Plan de masse Total Wash
Montage de la structure métallique
Le nouveau garage
Service dépannage
Voitures d'occasion
Previous Next Play Pause